手机天线测量系统
2016-12-13 15:17:36 点击:
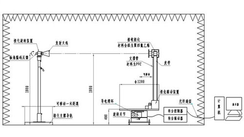
针对终端设备,例如北斗定位天线、手机及手机天线而设计的全自动测试系统,可以完成CTIA/OTA标准测试内容,实现TRP、TIS、天线增益、移动电话等有源或无源指标参数的测量,可以显示二维和三维多种图示。测试应用CMU200、HP8960、8753、5071等仪器。既能实现无源和有源测试,测量系统具有高可靠性、高效率、自动化程度高、功能强大,专业面向手机测量等特点。
- 上一篇:扫描架是什么 [2016-12-13]
- 下一篇:天线测量远场与近场的区别 [2016-12-12]







